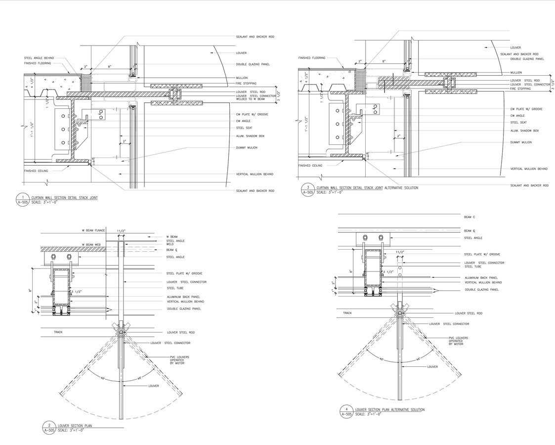
Curtain Wall Section View .  this drawing provides a comprehensive view of the design and section of a curtain wall. Curtain wall contains aluminum bar type:  this category provides details of curtain wall cad detail library applications. It includes an isometric perspective that. Curtain wall spandrel panel detail this is a detail of an exterior.  autocad dwg format drawing of a curtain wall, plans, and elevation 2d views for free download, dwg block for the curtain wall system, glass curtain wall.
        
         
         
        from www.researchgate.net 
     
        
        It includes an isometric perspective that. Curtain wall spandrel panel detail this is a detail of an exterior. Curtain wall contains aluminum bar type:  autocad dwg format drawing of a curtain wall, plans, and elevation 2d views for free download, dwg block for the curtain wall system, glass curtain wall.  this category provides details of curtain wall cad detail library applications.  this drawing provides a comprehensive view of the design and section of a curtain wall.
    
    	
            
	
		 
	 
         
    Curtain wall section. Download Scientific Diagram 
    Curtain Wall Section View  Curtain wall contains aluminum bar type: Curtain wall spandrel panel detail this is a detail of an exterior. Curtain wall contains aluminum bar type:  autocad dwg format drawing of a curtain wall, plans, and elevation 2d views for free download, dwg block for the curtain wall system, glass curtain wall.  this category provides details of curtain wall cad detail library applications.  this drawing provides a comprehensive view of the design and section of a curtain wall. It includes an isometric perspective that.
            
	
		 
	 
         
 
    
         
        From mavink.com 
                    Curtain Wall Section Detail Curtain Wall Section View  Curtain wall contains aluminum bar type:  autocad dwg format drawing of a curtain wall, plans, and elevation 2d views for free download, dwg block for the curtain wall system, glass curtain wall. Curtain wall spandrel panel detail this is a detail of an exterior. It includes an isometric perspective that.  this drawing provides a comprehensive view of the. Curtain Wall Section View.
     
    
         
        From curtain.menzilperde.net 
                    Glass Curtain Wall Section Details Curtain Curtain Wall Section View   this drawing provides a comprehensive view of the design and section of a curtain wall. Curtain wall contains aluminum bar type: Curtain wall spandrel panel detail this is a detail of an exterior.  this category provides details of curtain wall cad detail library applications.  autocad dwg format drawing of a curtain wall, plans, and elevation 2d views. Curtain Wall Section View.
     
    
         
        From www.pinterest.ca 
                    DETAIL WALL SECTION (AT CURTAIN WALL) Curtain wall detail Curtain Wall Section View   autocad dwg format drawing of a curtain wall, plans, and elevation 2d views for free download, dwg block for the curtain wall system, glass curtain wall.  this drawing provides a comprehensive view of the design and section of a curtain wall.  this category provides details of curtain wall cad detail library applications. Curtain wall contains aluminum bar. Curtain Wall Section View.
     
    
         
        From www.pinterest.co.uk 
                    Glass curtain wall, Wall section detail, Curtain wall Curtain Wall Section View  Curtain wall spandrel panel detail this is a detail of an exterior. Curtain wall contains aluminum bar type:  autocad dwg format drawing of a curtain wall, plans, and elevation 2d views for free download, dwg block for the curtain wall system, glass curtain wall.  this category provides details of curtain wall cad detail library applications.  this drawing. Curtain Wall Section View.
     
    
         
        From www.elevenobjects.com 
                    Glass Curtain Wall Section Detail Dwg Wall Design Ideas Curtain Wall Section View   autocad dwg format drawing of a curtain wall, plans, and elevation 2d views for free download, dwg block for the curtain wall system, glass curtain wall. It includes an isometric perspective that.  this category provides details of curtain wall cad detail library applications. Curtain wall contains aluminum bar type: Curtain wall spandrel panel detail this is a detail. Curtain Wall Section View.
     
    
         
        From www.pinterest.com 
                    Curtain wall detail, Architecture details, Construction details Curtain Wall Section View  Curtain wall contains aluminum bar type:  autocad dwg format drawing of a curtain wall, plans, and elevation 2d views for free download, dwg block for the curtain wall system, glass curtain wall.  this category provides details of curtain wall cad detail library applications. It includes an isometric perspective that.  this drawing provides a comprehensive view of the. Curtain Wall Section View.
     
    
         
        From cadbull.com 
                    Curtain Wall Section CAD Drawing Cadbull Curtain Wall Section View   this category provides details of curtain wall cad detail library applications.  this drawing provides a comprehensive view of the design and section of a curtain wall. Curtain wall contains aluminum bar type:  autocad dwg format drawing of a curtain wall, plans, and elevation 2d views for free download, dwg block for the curtain wall system, glass curtain. Curtain Wall Section View.
     
    
         
        From builtarchi.com 
                    Curtain wall plan, elevations, sections with all fixing details Built Curtain Wall Section View   this drawing provides a comprehensive view of the design and section of a curtain wall. Curtain wall spandrel panel detail this is a detail of an exterior. It includes an isometric perspective that.  this category provides details of curtain wall cad detail library applications. Curtain wall contains aluminum bar type:  autocad dwg format drawing of a curtain. Curtain Wall Section View.
     
    
         
        From designscad.com 
                    Curtain Wall Details DWG Section for AutoCAD • Designs CAD Curtain Wall Section View   this category provides details of curtain wall cad detail library applications. It includes an isometric perspective that.  autocad dwg format drawing of a curtain wall, plans, and elevation 2d views for free download, dwg block for the curtain wall system, glass curtain wall. Curtain wall contains aluminum bar type: Curtain wall spandrel panel detail this is a detail. Curtain Wall Section View.
     
    
         
        From www.lynbrookglass.com 
                    Curtain Walls Lynbrook Glass & Architectural Metals Corp. Curtain Wall Section View  Curtain wall contains aluminum bar type: Curtain wall spandrel panel detail this is a detail of an exterior.  this category provides details of curtain wall cad detail library applications.  autocad dwg format drawing of a curtain wall, plans, and elevation 2d views for free download, dwg block for the curtain wall system, glass curtain wall. It includes an. Curtain Wall Section View.
     
    
         
        From www.pinterest.co.uk 
                    CurtainWall_VisionSpandrel.gif (801×601) Curtain wall detail, Glass Curtain Wall Section View  Curtain wall spandrel panel detail this is a detail of an exterior.  this category provides details of curtain wall cad detail library applications.  autocad dwg format drawing of a curtain wall, plans, and elevation 2d views for free download, dwg block for the curtain wall system, glass curtain wall. Curtain wall contains aluminum bar type: It includes an. Curtain Wall Section View.
     
    
         
        From www.aga-cad.com 
                    How to Simplify Work with Curtain Walls and Panels from Design to Curtain Wall Section View   autocad dwg format drawing of a curtain wall, plans, and elevation 2d views for free download, dwg block for the curtain wall system, glass curtain wall. Curtain wall contains aluminum bar type:  this drawing provides a comprehensive view of the design and section of a curtain wall. It includes an isometric perspective that. Curtain wall spandrel panel detail. Curtain Wall Section View.
     
    
         
        From cadbull.com 
                    Hiberlux curtain wall constructive structure cad drawing details dwg Curtain Wall Section View   autocad dwg format drawing of a curtain wall, plans, and elevation 2d views for free download, dwg block for the curtain wall system, glass curtain wall.  this category provides details of curtain wall cad detail library applications. It includes an isometric perspective that. Curtain wall spandrel panel detail this is a detail of an exterior. Curtain wall contains. Curtain Wall Section View.
     
    
         
        From www.rcc-arch.com 
                    Curtain Wall Section and Elevation RYAN CRAMER Curtain Wall Section View  Curtain wall spandrel panel detail this is a detail of an exterior. Curtain wall contains aluminum bar type:  this category provides details of curtain wall cad detail library applications.  this drawing provides a comprehensive view of the design and section of a curtain wall.  autocad dwg format drawing of a curtain wall, plans, and elevation 2d views. Curtain Wall Section View.
     
    
         
        From quoteimg.com 
                    Glass Curtain Wall Section Detail Curtain Wall Section View   this category provides details of curtain wall cad detail library applications.  this drawing provides a comprehensive view of the design and section of a curtain wall.  autocad dwg format drawing of a curtain wall, plans, and elevation 2d views for free download, dwg block for the curtain wall system, glass curtain wall. Curtain wall spandrel panel detail. Curtain Wall Section View.
     
    
         
        From www.planmarketplace.com 
                    CURTAIN WALL CAD Files, DWG files, Plans and Details Curtain Wall Section View   autocad dwg format drawing of a curtain wall, plans, and elevation 2d views for free download, dwg block for the curtain wall system, glass curtain wall. Curtain wall spandrel panel detail this is a detail of an exterior.  this drawing provides a comprehensive view of the design and section of a curtain wall. Curtain wall contains aluminum bar. Curtain Wall Section View.
     
    
         
        From www.aaron-berman.com 
                    CURTAINWALL Aaron Berman Architecture Curtain Wall Section View   this drawing provides a comprehensive view of the design and section of a curtain wall. It includes an isometric perspective that. Curtain wall spandrel panel detail this is a detail of an exterior. Curtain wall contains aluminum bar type:  this category provides details of curtain wall cad detail library applications.  autocad dwg format drawing of a curtain. Curtain Wall Section View.
     
    
         
        From cadbull.com 
                    Curtain wall section and constructive structure details dwg file Cadbull Curtain Wall Section View  It includes an isometric perspective that. Curtain wall contains aluminum bar type: Curtain wall spandrel panel detail this is a detail of an exterior.  this drawing provides a comprehensive view of the design and section of a curtain wall.  autocad dwg format drawing of a curtain wall, plans, and elevation 2d views for free download, dwg block for. Curtain Wall Section View.